$675,000
  • 5 beds
  • 4 baths
  • 3273 sqft
  • 0.22 acres
  • 2022 year built

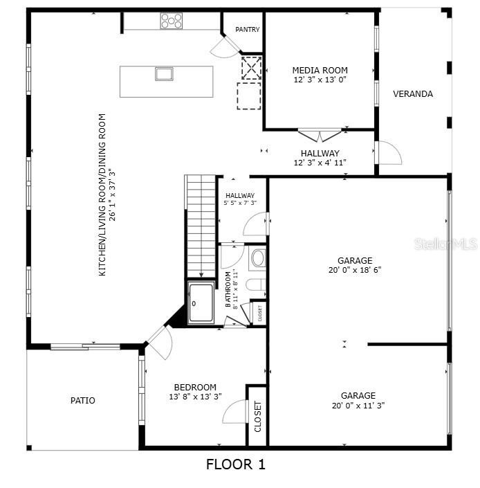
Welcome to this beautifully appointed 5-bedroom, 4-bath Ryan Home, built in 2022 and offering over 3,200 sq. ft. of thoughtfully designed living space. Set within the quiet Parrish neighborhood of Willow Bend and features no CDD fees and a low $100/month HOA, this home perfectly blends style, function, and comfort. The open-concept main level centers around a spacious chef’s kitchen featuring an oversized island, quartz countertops, and abundant cabinetry — ideal for cooking, entertaining, and everyday life. The kitchen opens to the dining and living areas, creating a bright, inviting flow for gatherings of any size. Downstairs, you’ll find a private en-suite bedroom for guests or multigenerational living, along with a dedicated home theater room complete with rumble seats, fiber optic ceiling, surround sound, and soundproof walls — a true in-home entertainment experience. Upstairs, a large loft/family room offers a flexible second living area, while each spacious guest room easily accommodates a bed and desk setup. The primary suite serves as a peaceful retreat with ample space and comfort. Duel closets and a spacious en-suite bathroom ensure the primary bedroom is fit for a royalty. Outside, enjoy an extended brick paver sidewalk and patio that wraps from the front of the home around to the back, creating exceptional outdoor living and entertaining space. The three-car garage adds convenience and storage, while the community pool across the street offers the perfect place to relax on sunny Florida days, without the expense or hassle of owning your own pool! Located in a smaller, friendly neighborhood close to new schools, shopping, and dining, this nearly new home delivers the best of Parrish living — modern design, flexible space, and low-maintenance luxury.

 



6307 114TH AVENUE E

Inquire about this home

Berkshire Hathaway HomeServices
Florida Realty

3192 Fruitville Rd, Sarasota, FL 34237


Explore: Willow Bend Ph Iii


Similar Listings

More Single Family Residence for sale near Willow Bend Ph Iii in PARRISH Florida


$875K 2977 WILDERNESS BLVD E PARRISH FL 34219

$875K 2305 LITTLE COUNTRY RD PARRISH FL 34219

$875K 8916 ISABELLA CIR PARRISH FL 34219

Listing Broker: EXP REALTY LLC
Last Changed: Thursday 23rd of October 2025 12:38:10 AM

All listing information is deemed reliable but not guaranteed and should be independently verified through personal inspection by appropriate professionals. Listings displayed on this website may be subject to prior sale or removal from sale; vailability of any listing should always be independently verified. Listing information is provided for consumer personal, non-commercial use, solely to identify potential properties for potential purchase; all other use is strictly prohibited and may violate relevant federal and state law. Copyright 2021 , Stellar MLS.