$600,000
  • 2 beds
  • 2 baths
  • 1816 sqft
  • 0.39 acres
  • 1966 year built

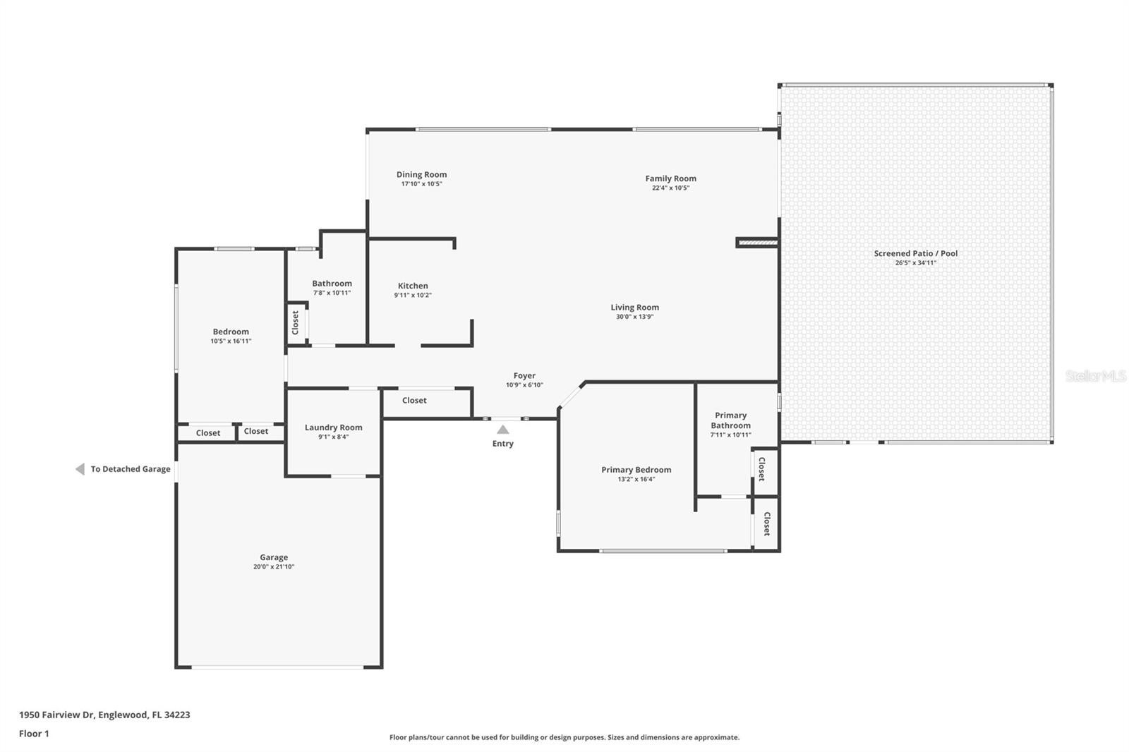
Under contract-accepting backup offers. One or more photo(s) has been virtually staged. Live the coastal lifestyle in this fully remodeled pool home on two sailboat-access lots in Overbrook Gardens—less than 10 minutes to the Intracoastal. Spend your days boating from your private dock with lift, swimming in the heated pool, or relaxing on the screened lanai with wide canal views. An attached 2-car garage and a 900+ sq ft detached garage with 10-ft door, car lift, mini-split A/C, and storage shed provide space for cars, boats, and hobbies. Inside, natural light fills the open layout with hurricane-impact windows and LVT flooring. The kitchen is designed for both style and function with quartz counters, wood cabinetry, stainless appliances, and tile backsplash. The primary suite offers a tiled walk-in shower, while the guest bath is equally updated. A/C was replaced in 2022, and a whole-home generator adds peace of mind. This Englewood location is minutes from Manasota Key and Englewood Beach, Venice, Wellen Park, and the shops and dining of Dearborn Street. Overbrook Gardens offers an optional HOA with access to a private boat ramp, making this home the ideal blend of waterfront living, recreation, and convenience.

 



1950 FAIRVIEW DRIVE

Inquire about this home

Berkshire Hathaway HomeServices
Florida Realty

3192 Fruitville Rd, Sarasota, FL 34237


Explore: Overbrook Gardens


Similar Listings

More Single Family Residence for sale near Overbrook Gardens in ENGLEWOOD Florida


$779.9K 25509 ROYAL TERN LN ENGLEWOOD FL 34223

$775K 535 VIRIDIAN ST ENGLEWOOD FL 34223

$759K 26651 RAPHIS ROYALE BLVD ENGLEWOOD FL 34223

Listing Broker: CENTURY 21 SUNBELT REALTY
Last Changed: Thursday 09th of October 2025 06:59:10 PM

All listing information is deemed reliable but not guaranteed and should be independently verified through personal inspection by appropriate professionals. Listings displayed on this website may be subject to prior sale or removal from sale; vailability of any listing should always be independently verified. Listing information is provided for consumer personal, non-commercial use, solely to identify potential properties for potential purchase; all other use is strictly prohibited and may violate relevant federal and state law. Copyright 2021 , Stellar MLS.