$519,000
  • 3 beds
  • 2 baths
  • 1636 sqft
  • 0.17 acres
  • 2003 year built

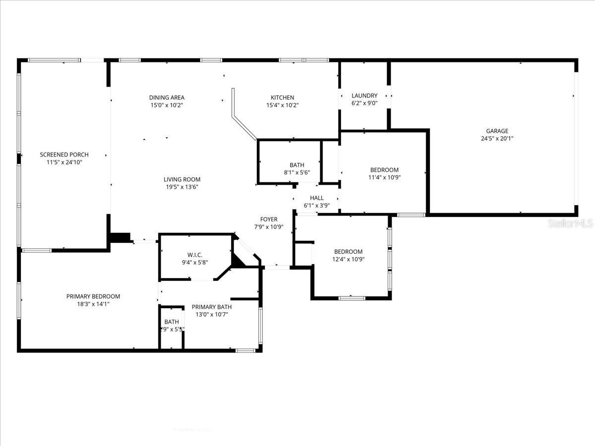
Exquisite Grand Villa Donatello in the Sought-After Venetian Golf & River Club Community. Fully remodeled in 2024/2025, this beautifully maintained Villa blends timeless Mediterranean-style elegance with modern luxury in the highly desirable Venetian Golf & River Club community. The home welcomes you with a tile roof, brick paver driveway/sidewalk, oversized two-car garage, lush landscaping, and a mature shade tree, creating an inviting first impression. Inside, a spacious three-bedroom, two-bath floor plan features soaring ceilings, large diagonal-set tile flooring, crown molding, and upgraded lighting and ceiling fans. The open living and dining area showcases a built-in 75-inch Smart TV with surround sound and a six-panel glass pocket door opening the home to a lanai with serene water and golf course views. The chef-inspired kitchen offers stainless steel appliances, a gas range, granite countertops with matching subway tile backsplash, a breakfast bar with elegant pendant lighting, abundant raised-panel cabinetry with crown molding, and a conveniently located laundry room. The primary suite is a peaceful retreat with plush new carpeting, a walk-in closet, and a spa-like bath featuring a free-standing soaking tub with glass block windows, a Roman-style shower, and a granite-top dual-sink vanity. Two additional guest bedrooms share an updated bath with a walk-in shower enclosed by a frameless glass door and wall. Step outside to the lanai, perfect for entertaining, with automatic hurricane screens and a custom gas summer kitchen set against tranquil waterfront views. Furniture is available under a separate agreement for an easy move-in. Additional features include a new water heater (2025), updated A/C (2012), irrigation system, impact-resistant windows and garage door, 8’ solid wood doors, and new 6 ¼” baseboard trim around windows and doors and so much more. Residents enjoy resort-style amenities including fine dining at the River Club overlooking a 70-acre nature park, a state-of-the-art fitness center, aerobics studio, lap and resort-style pools with cabana bar, six Har-Tru tennis courts, pickleball courts, and an 18-hole championship golf course. Just 10 minutes from Gulf beaches, shopping, Sarasota Memorial Hospital’s new facility, and with easy access to I-75 and nearby airports, this home offers the ultimate in convenience and lifestyle. Photos coming soon — stay tuned to see this exceptional Donatello model in all its splendor. **PLEASE ENJOY THE 3D INTERACTIVE VIRTUAL TOUR ASSOCIATED WITH THIS LISTING**

 



177 TREVISO COURT

Inquire about this home

Berkshire Hathaway HomeServices
Florida Realty

3192 Fruitville Rd, Sarasota, FL 34237


Explore: Venetian Golf And River Club


Similar Listings

More Single Family Residence for sale near Venetian Golf And River Club in NORTH VENICE Florida


$669.9K 1985 WHITE FEATHER LN NOKOMIS FL 34275

$665K 1702 SPOONBILL DR NOKOMIS FL 34275

$665K 405 ALBERATA WAY NOKOMIS FL 34275

Listing Broker: MARINA PARK REALTY LLC
Last Changed: Wednesday 15th of October 2025 03:26:10 PM

All listing information is deemed reliable but not guaranteed and should be independently verified through personal inspection by appropriate professionals. Listings displayed on this website may be subject to prior sale or removal from sale; vailability of any listing should always be independently verified. Listing information is provided for consumer personal, non-commercial use, solely to identify potential properties for potential purchase; all other use is strictly prohibited and may violate relevant federal and state law. Copyright 2021 , Stellar MLS.