$3,850,000
  • 4 beds
  • 5 baths
  • 7378 sqft
  • 0.33 acres
  • 2002 year built

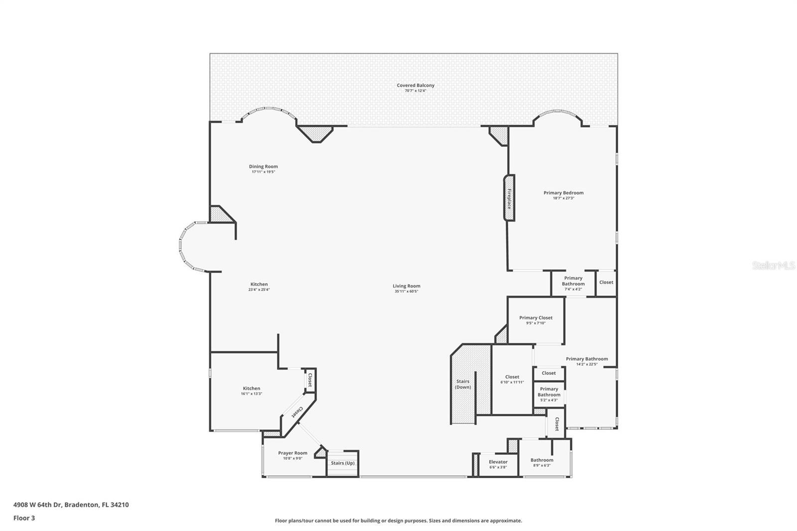
Positioned behind the gates of Esplanade on the Bay, this custom-built contemporary waterfront estate offers a rare opportunity to own 100 feet of private Sarasota Bay frontage with unobstructed, panoramic bay views from nearly every room. Floor-to-ceiling walls of glass and soaring 18-foot ceilings frame the water as living art, while imported granite tile flooring—installed by artisans known for their work at the Bellagio in Las Vegas—creates a refined, gallery-like interior. The expansive third floor was thoughtfully designed for luxurious grand-scale entertaining, offering an elegant and seamless flow that sets the stage for unforgettable gatherings beginning with the stately great room that anchors the home with dramatic bay vistas, flowing seamlessly into a sophisticated formal dining room, anchored by kitchen and a custom wet bar with built in ice maker. This gourmet chef’s kitchen is impeccably appointed with an elite suite of Thermador, Sub-Zero, Bosch, and Dacor appliances, complemented by an oversized statement island, an inviting breakfast bar, and a dedicated wine cooler. An expansive separate scullery kitchen with a second set of deluxe appliances provides discreet prep space and seamless catering flow—elevating every gathering with true estate-level sophistication. The Primary Bedroom suite is a true sanctuary, complete with a romantic fireplace and a spa-inspired bath featuring a glass-encased shower, a jetted soaking tub, and indulgent designer finishes. Expansive custom walk-in closets and elevated terraces capture sweeping, panoramic bay views, creating an exquisite haven of comfort and sophistication—while a dedicated meditation room on this level provides a serene space for reflection and renewal. The second floor features three exceptional bedroom suites, each offering refined, private accommodations with a luxurious en-suite bath and its own balcony overlooking the shimmering bay—creating a serene retreat. This level includes an inviting family room anchored by a statement fireplace, a dedicated private study, and culminates in a fully outfitted home theater with plush luxury seating for eight. The heated gunite pool and spa, enclosed for comfort and equipped with self-cleaning technology, is complemented by an outdoor kitchen making it ideal for sunset entertaining. A private dock extends from the estate’s 100 feet of direct waterfront, complementing the home’s uninterrupted sightlines across Sarasota Bay. Modern luxury blends seamlessly with smart sustainability and refined practicality. Rooftop solar panels generate approximately 70% of the estate’s energy, while a private elevator serves all three levels and the rooftop retreat. Newly installed hurricane-rated garage doors add security and peace of mind. For the discerning collector, a six-car garage with dedicated workshop space, complemented by a gracious circular drive, offers exceptional capacity and an impressive arrival experience for residents and guests alike. Located minutes from IMG Academy, Sarasota-Bradenton International Airport, world-class dining, upscale shopping, and the barrier island beaches of Anna Maria Island and Longboat Key, this custom Sarasota Bay waterfront estate represents a rare convergence of scale, architectural significance, and unobstructed bay views—crafted for discerning buyers seeking a premier Gulf Coast luxury residence with privacy and enduring value.

 



4908 64TH DRIVE W

Inquire about this home

Berkshire Hathaway HomeServices
Florida Realty

3192 Fruitville Rd, Sarasota, FL 34237


Explore: Esplanade On The Bay


Similar Listings

More Single Family Residence for sale near Esplanade On The Bay in BRADENTON Florida


$3.9M 4908 64TH DR W BRADENTON FL 34210

$3.9M 4908 64TH DR W BRADENTON FL 34210

$3.8M 5610 INSPIRATION TER BRADENTON FL 34210

Listing Broker: KELLER WILLIAMS REALTY PORTFOLIO COLLECTION
Last Changed: Friday 20th of February 2026 08:57:10 PM

All listing information is deemed reliable but not guaranteed and should be independently verified through personal inspection by appropriate professionals. Listings displayed on this website may be subject to prior sale or removal from sale; vailability of any listing should always be independently verified. Listing information is provided for consumer personal, non-commercial use, solely to identify potential properties for potential purchase; all other use is strictly prohibited and may violate relevant federal and state law. Copyright 2021 , Stellar MLS.