$195,000
  • 2 beds
  • 2 baths
  • 1064 sqft
  • 0 acres
  • 2007 year built

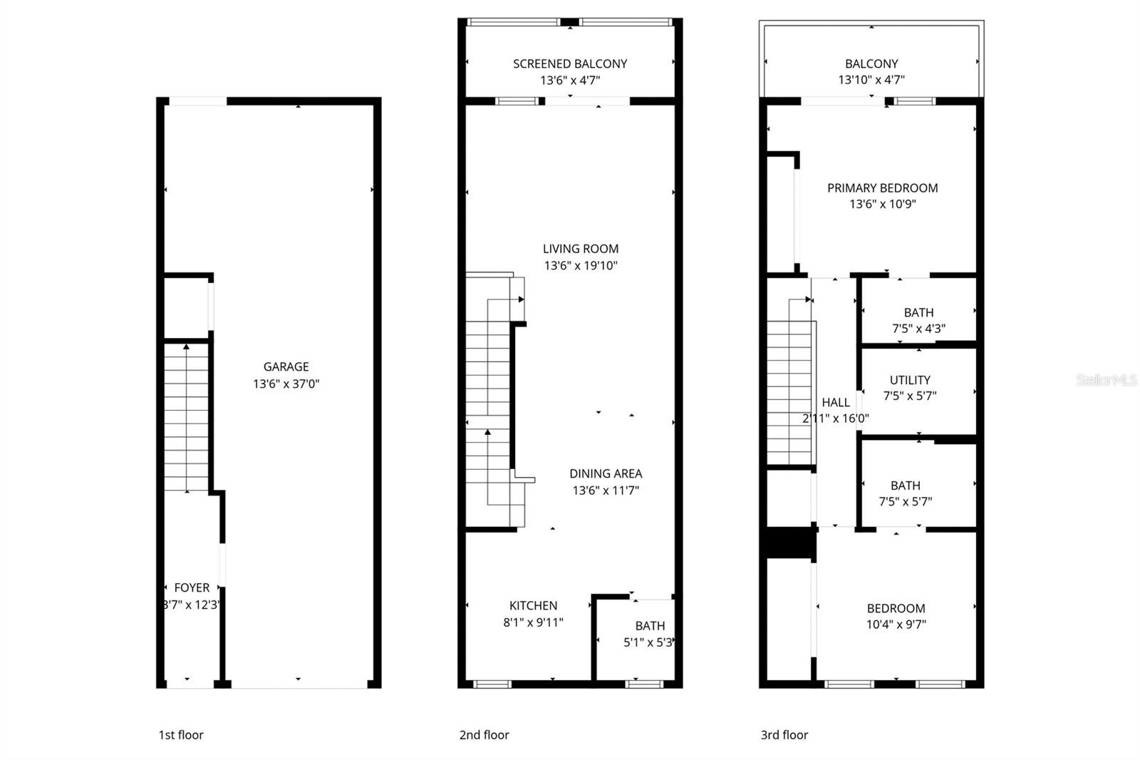
Under contract-accepting backup offers. This move-in-ready townhome stands out with major recent upgrades, including a new roof replaced by the association in 2022, a brand-new air conditioning system installed in 2025, all new ductwork, new kitchen appliances, and a new washer and dryer—improvements rarely found together at this price point. Located in the gated Willowbrook community, this home offers peace of mind, comfort, and true maintenance-free living in the heart of Lakewood Ranch. The main living level features a bright, open layout designed for everyday living and entertaining. The spacious living and dining areas flow seamlessly into the kitchen, creating a welcoming space filled with natural light. The kitchen is well appointed with newly updated appliances, ample cabinetry, and a functional layout that makes both casual meals and hosting guests easy and enjoyable. This level offers a comfortable balance of openness and privacy, ideal for modern living. Upstairs, the home offers two ensuite bedrooms, each with its own private bathroom, providing flexibility and privacy for residents and guests alike. The separation between living and sleeping spaces makes the layout especially appealing for full-time living, seasonal use, or a lock-and-leave lifestyle. The three-story design includes a tandem parking garage on the first-floor/basement level, offering secure parking along with additional storage space—an often overlooked but valuable feature for townhome living. Willowbrook at Lakewood Ranch delivers a true maintenance-free lifestyle, with lawn care, exterior maintenance, water, sewer, trash, internet, and cable all included, along with access to the community pool and no CDD fee. The location is exceptional, placing you just minutes from Lakewood Ranch’s best shopping, dining, and entertainment, with easy access to the University Parkway corridor, UTC Mall, I-75, and Sarasota’s world-famous beaches. With its new roof, 2025 A/C and ductwork, new appliances, maintenance-free living, community pool, and prime Lakewood Ranch location, this townhome presents an outstanding opportunity. Contact us today to schedule your private showing and see this beautifully upgraded home in person.

 



8666 MAJESTIC ELM COURT

Inquire about this home

Berkshire Hathaway HomeServices
Florida Realty

3192 Fruitville Rd, Sarasota, FL 34237


Explore: Willowbrook Phase 3


Similar Listings

More Townhouse for sale near Willowbrook Phase 3 in LAKEWOOD RANCH Florida


$249.9K 14982 SKIP JACK LOOP LAKEWOOD RANCH FL 34202

$234.9K 14980 SKIP JACK LOOP LAKEWOOD RANCH FL 34202

$225K 9024 WHITE SAGE LOOP LAKEWOOD RANCH FL 34202

Listing Broker: RE/MAX ALLIANCE GROUP
Last Changed: Monday 02nd of February 2026 11:53:11 AM

All listing information is deemed reliable but not guaranteed and should be independently verified through personal inspection by appropriate professionals. Listings displayed on this website may be subject to prior sale or removal from sale; vailability of any listing should always be independently verified. Listing information is provided for consumer personal, non-commercial use, solely to identify potential properties for potential purchase; all other use is strictly prohibited and may violate relevant federal and state law. Copyright 2021 , Stellar MLS.