$399,900
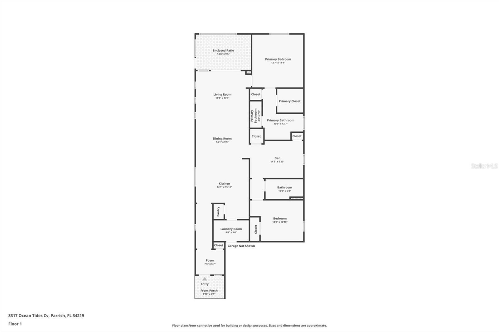
  • 2 beds
  • 2 baths
  • 1648 sqft
  • 0.16 acres
  • 2022 year built

Beautifully maintained Hallmark floorplan that shows better than a model home, featuring thoughtful upgrades and personalized touches throughout. Seasonally lived in and meticulously cared for, this home presents in pristine, move-in-ready condition. Interior features a charming blue cottage-inspired design, with sellers offering to repaint the interior in a buyer’s preferred color prior to closing. The sellers are moving within the community simply to accommodate a Steinway piano, reflecting their love for the neighborhood and lifestyle. The extended 4-foot garage provides space for two vehicles plus workshop or storage — a rare and valuable upgrade. Interior layout includes two bedrooms, two full baths, and a versatile flex room currently used as a music room, plus excellent storage throughout. Active lifestyle amenities include pickleball, tennis, bocce, fitness center, community gardens, shuffleboard, two dog parks, and an on-site bar and grill. Golf cart friendly community. Convenient access to Tampa, St. Petersburg, and Sarasota airports, world-class beaches, shopping, and waterfront dining. HOA includes tree and grounds maintenance, cable TV, and internet. CDD is included in current tax amount. Not located in a flood zone. Sellers have secured their next home and can accommodate a quick closing.

 



8317 OCEAN TIDES CV WAY

Inquire about this home

Berkshire Hathaway HomeServices
Florida Realty

3192 Fruitville Rd, Sarasota, FL 34237


Explore: Del Webb At Bayview Ph Ii Subph A & B


Similar Listings

More Single Family Residence for sale near Del Webb At Bayview Ph Ii Subph A & B in PARRISH Florida


$519K 1922 VANDALIA PL PARRISH FL 34219

$515.7K 12224 VIOLET JASPER DR PARRISH FL 34219

$515.7K 11830 RICHMOND TRAIL PARRISH FL 34219

Listing Broker: PREMIER PROPERTIES OF SRQ LLC
Last Changed: Thursday 19th of March 2026 10:22:10 PM

All listing information is deemed reliable but not guaranteed and should be independently verified through personal inspection by appropriate professionals. Listings displayed on this website may be subject to prior sale or removal from sale; vailability of any listing should always be independently verified. Listing information is provided for consumer personal, non-commercial use, solely to identify potential properties for potential purchase; all other use is strictly prohibited and may violate relevant federal and state law. Copyright 2021 , Stellar MLS.