$888,000
  • 4 beds
  • 2 baths
  • 2551 sqft
  • 0.25 acres
  • 2002 year built

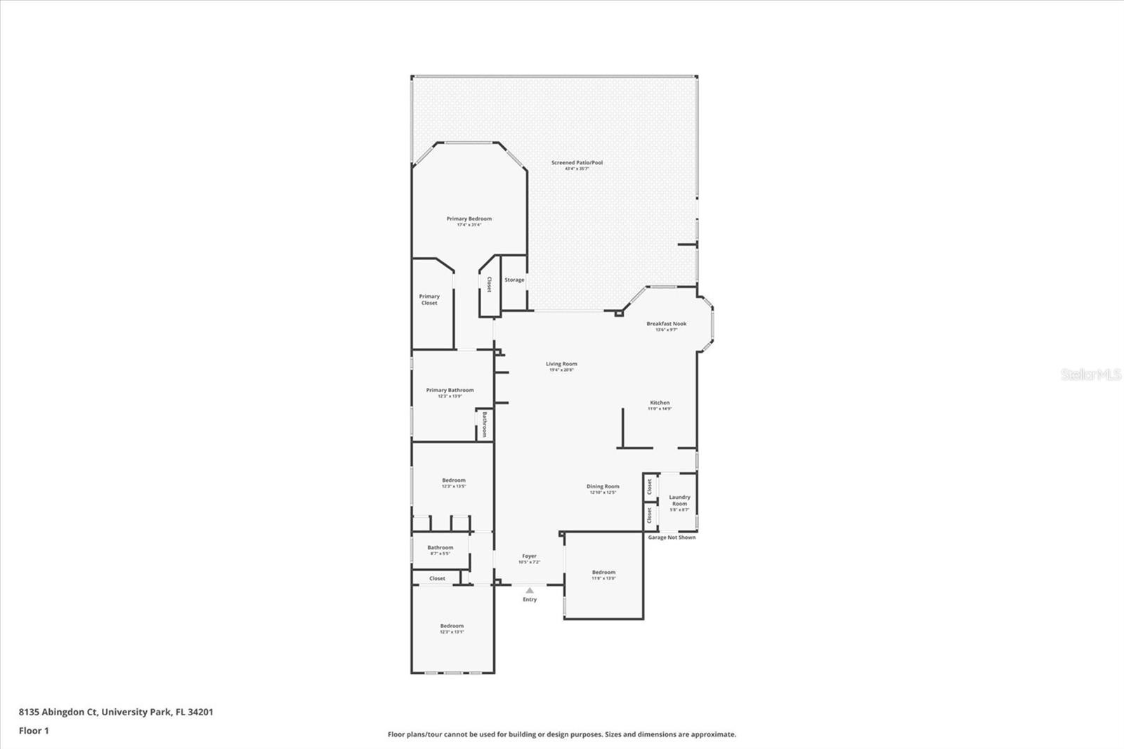
Located in the award-winning University Park Country Club, this beautifully maintained 3-bedroom, 2.5-bath home with an office/den and private pool is nestled in the maintenance-free Kenwood Park neighborhood, which also offers its own community pool. A pavered driveway and walkway guide you through lush tropical landscaping to double leaded glass entry doors accented by an arched transom window. Enjoy exceptional privacy with wooded preserve views both in front of and behind the home—no neighboring homes across the street. The bright foyer opens to a combined living and dining room featuring diagonal tile flooring, architectural details, and an open, inviting layout. The living room flows seamlessly into the kitchen and is enhanced by crown molding, recessed lighting, a modern ceiling fan, built-in cabinetry and shelving, and a fully retractable triple sliding glass door leading to the lanai—perfect for indoor-outdoor living. The light and airy eat-in kitchen offers light cabinetry, a raised breakfast bar, a dedicated coffee bar area, aquarium window overlooking the lanai, and charming window seating. The spacious primary suite features carpeted flooring, two walk-in closets, abundant windows, a cozy seating area, tray ceiling, ceiling fan, and recessed lighting. The fully renovated, spa-like primary bath boasts a large zero-entry walk-in shower with bench, a freestanding soaking tub, and dual vanities. Two guest bedrooms offer plush carpet, ceiling fans, and large windows. The office/den—currently used as a fourth bedroom—features crown molding, a ceiling fan, recessed lighting, and double-door entry. The guest bathroom includes a tub/shower combination with a new vanity and countertop, while a convenient half bath is located on the lanai. Outdoor living shines on the private lanai with epoxy-finished flooring, a heated resurfaced pool with in-floor cleaning system, and a modern ceiling fan. A large decorative mural enhances privacy while complementing the tranquil tropical and wooded backdrop. Additional features include a well-appointed laundry room with sink, cabinetry, and two closets, as well as an oversized two-car garage with extensive storage cabinetry and countertops. This home offers the perfect blend of privacy, comfort, and resort-style living in one of University Park Country Club’s most desirable neighborhoods. Furniture available separately. University Park Country Club is consistently ranked one of the top courses in Florida featuring 27 holes of championship golf; tennis and pickleball; fitness center, croquet – as well as an array of social and group activities. Just a 15-minute drive outside this peaceful enclave is downtown Sarasota, with shopping, arts & theatres, museums, dining and entertainment, top-ranked healthcare, beaches and SRQ International Airport. Two miles east of UPCC is the convenience of I-75, University Town Center with over 300 nationally known and homegrown shops, restaurants, fitness studios, services and attractions, the Nate Benderson Park, home of world-class rowing events and the Mote Marine Aquarium. Enjoy the club amenities with the required minimum of a Social membership at UPCC, which is owned by the residents through a Recreation District.

 



8135 ABINGDON COURT

Inquire about this home

Berkshire Hathaway HomeServices
Florida Realty

3192 Fruitville Rd, Sarasota, FL 34237


Explore: University Park Country Club


Similar Listings

More Single Family Residence for sale near University Park Country Club in UNIVERSITY PARK Florida


$1.1M 8125 COLLINGWOOD CT UNIVERSITY PARK FL 34201

$1.1M 6615 HUNTER COMBE XING UNIVERSITY PARK FL 34201

$975K 7853 WILTON CRESCENT CIRCLE UNIVERSITY PARK FL 34201

Listing Broker: FINE PROPERTIES
Last Changed: Tuesday 10th of February 2026 08:28:11 PM

All listing information is deemed reliable but not guaranteed and should be independently verified through personal inspection by appropriate professionals. Listings displayed on this website may be subject to prior sale or removal from sale; vailability of any listing should always be independently verified. Listing information is provided for consumer personal, non-commercial use, solely to identify potential properties for potential purchase; all other use is strictly prohibited and may violate relevant federal and state law. Copyright 2021 , Stellar MLS.