$589,900
  • 4 beds
  • 3 baths
  • 2006 sqft
  • 0.17 acres
  • 2016 year built

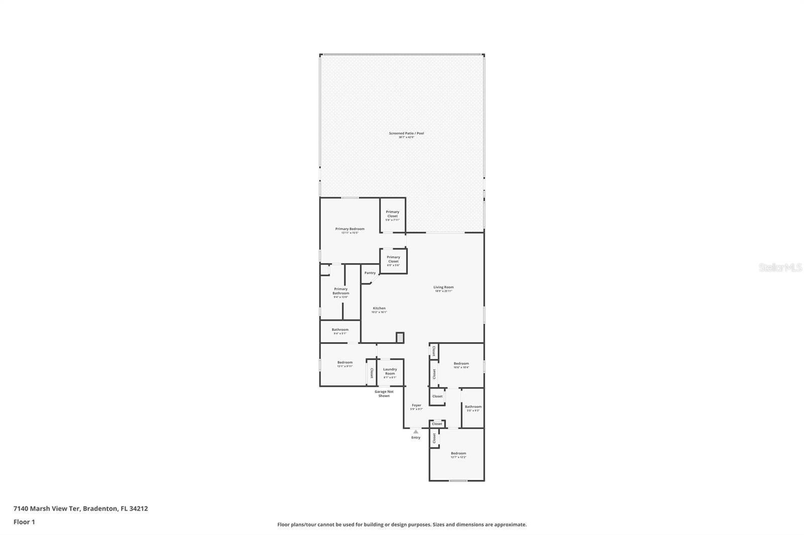
Located within the exclusive, gated Sanctuary neighborhood of River Strand Golf & Country Club, this impeccably cared-for home offers comfort, elegance, and exceptional indoor-outdoor living. Featuring the highly sought-after Trevi floor plan, the residence includes 4 bedrooms and 3 full bathrooms arranged in a smart split-bedroom design that provides both openness and privacy. One bedroom features a private ensuite, ideal for overnight guests, multi-generational living, or a flexible work-from-home space. The owner’s suite is a peaceful escape, showcasing two walk-in closets and a well-appointed bath with dual sinks, a soaking tub, and a separate walk-in shower. The kitchen serves as the heart of the home and is outfitted with granite countertops, stainless steel appliances, solid wood cabinetry, and generous prep space, seamlessly connecting to the main living and dining areas for effortless entertaining. Notable enhancements include crown molding, ceiling fans, window treatments, diagonal tile flooring throughout the main living areas, a newly screened front entry, gutter system, and a solar-powered attic ventilation fan for added energy efficiency. Outdoor living is elevated with a spacious travertine pool deck measuring approximately 36' x 40', surrounding a large pool and spa completed in 2018. Upgrades include a Pebble Sheen interior, saltwater system, variable-speed pump, and multicolor LED lighting with remote control. a heat pump allows for comfortable swimming year-round. The covered lanai (approximately 18' x 8') is equipped with electronic hurricane screens, creating a versatile space to relax or entertain in any season. Residents of River Strand enjoy access to an impressive array of amenities, including multiple resort-style pools, a clubhouse with dining options, fitness centers, 8 pickleball courts, 9 Har-Tru tennis courts, and a full calendar of social activities—all within a secure, 24-hour gated community. The transferable Social Membership is included and offers convenient pay-as-you-play golf on the beautifully renovated 27-hole course redesigned by Andrew Green. The HOA provides exceptional value, covering lawn and landscape maintenance, irrigation water, cable television, and high-speed internet. Ideally situated near I-75, University Town Center, Lakewood Ranch shopping and dining, and the area’s renowned beaches, this home delivers both luxury and lifestyle. Arrange your private showing today.

 



7140 MARSH VIEW TERRACE

Inquire about this home

Berkshire Hathaway HomeServices
Florida Realty

3192 Fruitville Rd, Sarasota, FL 34237


Explore: River Strand


Similar Listings

More Single Family Residence for sale near River Strand in BRADENTON Florida


$749K 12520 NATUREVIEW CIR BRADENTON FL 34212

$749K 16307 UPPER MANATEE RIVER RD BRADENTON FL 34212

$744.9K 12015 GOLDENROD AVE BRADENTON FL 34212

Listing Broker: THE KEYES COMPANY - SARASOTA
Last Changed: Friday 06th of February 2026 08:24:10 PM

All listing information is deemed reliable but not guaranteed and should be independently verified through personal inspection by appropriate professionals. Listings displayed on this website may be subject to prior sale or removal from sale; vailability of any listing should always be independently verified. Listing information is provided for consumer personal, non-commercial use, solely to identify potential properties for potential purchase; all other use is strictly prohibited and may violate relevant federal and state law. Copyright 2021 , Stellar MLS.