$2,500
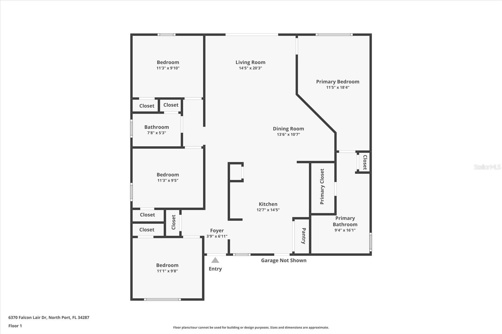
  • 4 beds
  • 2 baths
  • 1551 sqft
  • 0.17 acres
  • 2007 year built

FULLY FURNISHED! NOT FLOOD ZONE! GATED COMMUNITY!COMMUNITY POOL! 4 BEDROOM AND 2 BATH! An outdoor paradise...GATED COMMUNITY with a clubhouse—NOT FLOOD ZONE! Heated resort-style pool, tennis/pickleball courts, fitness room, and kayak launch. Within minutes to shopping, restaurants, beaches, golf, fishing, schools, and medical facilities, minutes from WELLEN PARK AND WARM MINERAL SPRINGS. Do not miss out on this exceptional opportunity to craft your dream home or invest in a prime location. 4 BEDROOMS, 2 BATHS, PUBLIC WATER, AND PUBLIC SEWER, NOT FLOOD ZONE. Minutes from Gulf Coast beaches, 7 fishing ponds, and canoe launch within the community, within five minutes to the Myakka River and Deer Prairie Creek for hiking, biking, fishing, and boating. Swimming pool, fitness room, gym, tennis, and pickleball courts are on site all for a low HOA! And the home... Meticulously maintained and recently upgraded, this fabulous home is move-in ready. Located in the private gated community of Talon Bay.An extra-deep two-car garage can accommodate full-size SUV’s. A ravishing blend of comfort and style, the interior flows seamlessly to a fantastic outdoor area. The open great room floor plan is designed to be versatile for both casual and formal entertaining. The kitchen is a cook's delight, with abundant warm-tone wooden cabinetry that is guaranteed to be the heart of the home. Enjoy your meals at the casual breakfast bar or in the spacious dining area. The master suite provides privacy and size, and the custom bath is luxurious with a roman shower, dual sinks, and separate oversize tub. The guest accommodations are warm and welcoming. Two bedrooms and a separate bathroom for guests.Talon Bay is a deed-restricted gated community with a clubhouse, heated resort-style pool, tennis / pickleball courts, fitness room, and kayak launch. Within minutes to shopping, restaurants, beaches, golf, fishing, schools, and medical facilities. Do not miss out on this exceptional opportunity to craft your dream home or invest in a prime location. Schedule a showing today and begin envisioning the endless possibilities offered by this remarkable property! Experience the best of Florida, with nearby beaches, golf courses, and outdoor recreational activities just a short drive away. Don't miss out on the chance to own this extraordinary home.

 



6370 FALCON LAIR DRIVE

Inquire about this home

Berkshire Hathaway HomeServices
Florida Realty

3192 Fruitville Rd, Sarasota, FL 34237


Explore: Talon Bay


Listing Broker: RE/MAX PALM REALTY OF VENICE
Last Changed: Thursday 18th of December 2025 12:12:09 AM

All listing information is deemed reliable but not guaranteed and should be independently verified through personal inspection by appropriate professionals. Listings displayed on this website may be subject to prior sale or removal from sale; vailability of any listing should always be independently verified. Listing information is provided for consumer personal, non-commercial use, solely to identify potential properties for potential purchase; all other use is strictly prohibited and may violate relevant federal and state law. Copyright 2021 , Stellar MLS.