$1,150,000
  • 3 beds
  • 3 baths
  • 2668 sqft
  • 0.19 acres
  • 2024 year built

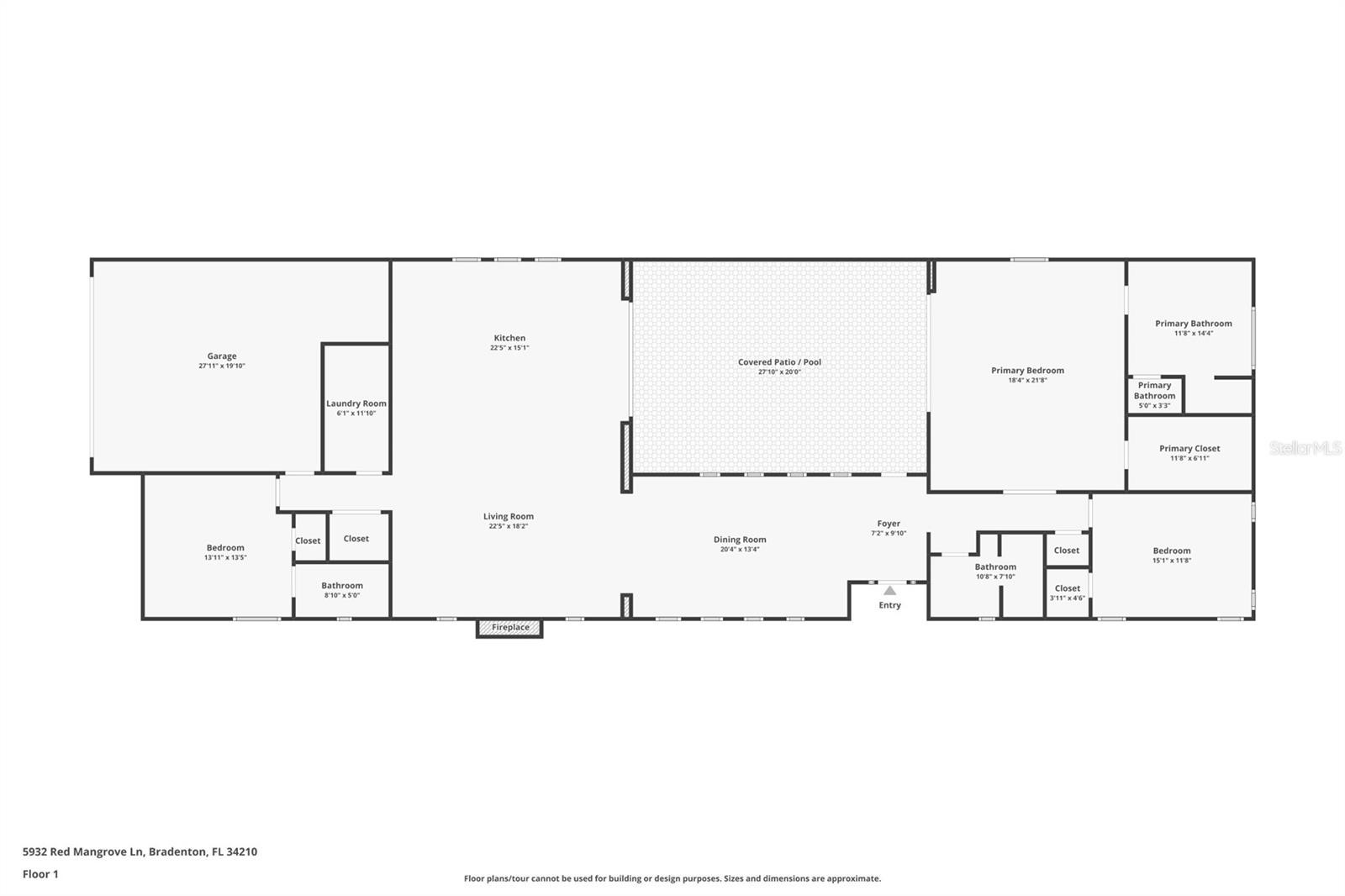
Welcome to this new construction home in the gated Aqua community – a prime opportunity offered BELOW the builder’s price! Built in a non-flood zone with solid block construction, a durable tile roof, and PGT impact windows and sliders, it meets current hurricane codes for true peace of mind. This could be a strong investment opportunity (8-9% cap rate based on actual rent). Aqua offers a private 4-acre tropical lagoon for swimming, paddleboarding, and kayaking, and the home is less than 5 minutes to IMG Academy. The property sits directly across from the lagoon for easy access. Set on an oversized extended lot, the home enjoys extra space, privacy, and more natural light inside thanks to wider side setbacks. This highly customized Sea Grape plan is approximately 250 sq ft larger than the standard model, creating more room where it matters. The single-level layout includes three bedrooms, three full bathrooms, and a two-car garage. The great room impresses with soaring 14 ft ceilings, while the rest of the home features 10 to 11 ft ceilings and tray accents. A dedicated laundry room adds everyday convenience. At the heart of the home is an oversized kitchen island surrounded by extended cabinetry, high-end appliances, a gas range, and a built-in wall oven with a convection microwave. Impact-rated sliders from the kitchen and the primary suite stack out of sight to connect the interior with a private courtyard designed for effortless indoor-outdoor living. The courtyard is a true retreat with a heated spool featuring six jets, smartphone controls, a tranquil waterfall, privacy fencing, and an outdoor kitchen with a gas grill for year-round entertaining. The primary suite showcases a distinctive blend of hardwood and tile flooring, a large walk-in closet, a free-standing soaking tub, and a shower with a dual-swing glass door. Additional upgrades include a feature fireplace, an extended garage with a 60-amp EV charging outlet, whole-home spray foam insulation, a micro-leak detection system, and added insulation around the AHU closet. Low HOA dues include fiber internet, TV, and landscaping for a low-maintenance lifestyle. Do not miss this opportunity to own a one-of-a-kind extended plan on an oversized lot. Schedule your private tour today!

 



5932 RED MANGROVE LANE

Inquire about this home

Berkshire Hathaway HomeServices
Florida Realty

3192 Fruitville Rd, Sarasota, FL 34237


Explore: Aqua Lagoon


Similar Listings

More Single Family Residence for sale near Aqua Lagoon in BRADENTON Florida


$1.4M 5238 TITLE ROW DR BRADENTON FL 34210

$1.3M 3816 ROYAL PALM DR BRADENTON FL 34210

$1.3M 5910 RED MANGROVE LN BRADENTON FL 34210

Listing Broker: KELLER WILLIAMS ST PETE REALTY
Last Changed: Tuesday 20th of January 2026 08:34:11 PM

All listing information is deemed reliable but not guaranteed and should be independently verified through personal inspection by appropriate professionals. Listings displayed on this website may be subject to prior sale or removal from sale; vailability of any listing should always be independently verified. Listing information is provided for consumer personal, non-commercial use, solely to identify potential properties for potential purchase; all other use is strictly prohibited and may violate relevant federal and state law. Copyright 2021 , Stellar MLS.