$800,000
  • 4 beds
  • 3 baths
  • 2509 sqft
  • 0.24 acres
  • 1979 year built

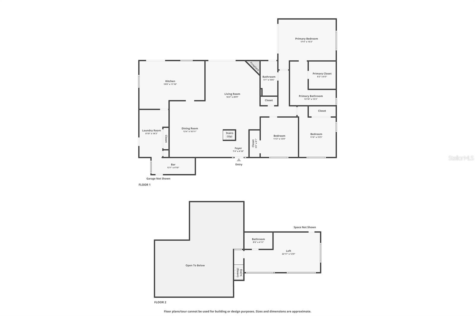
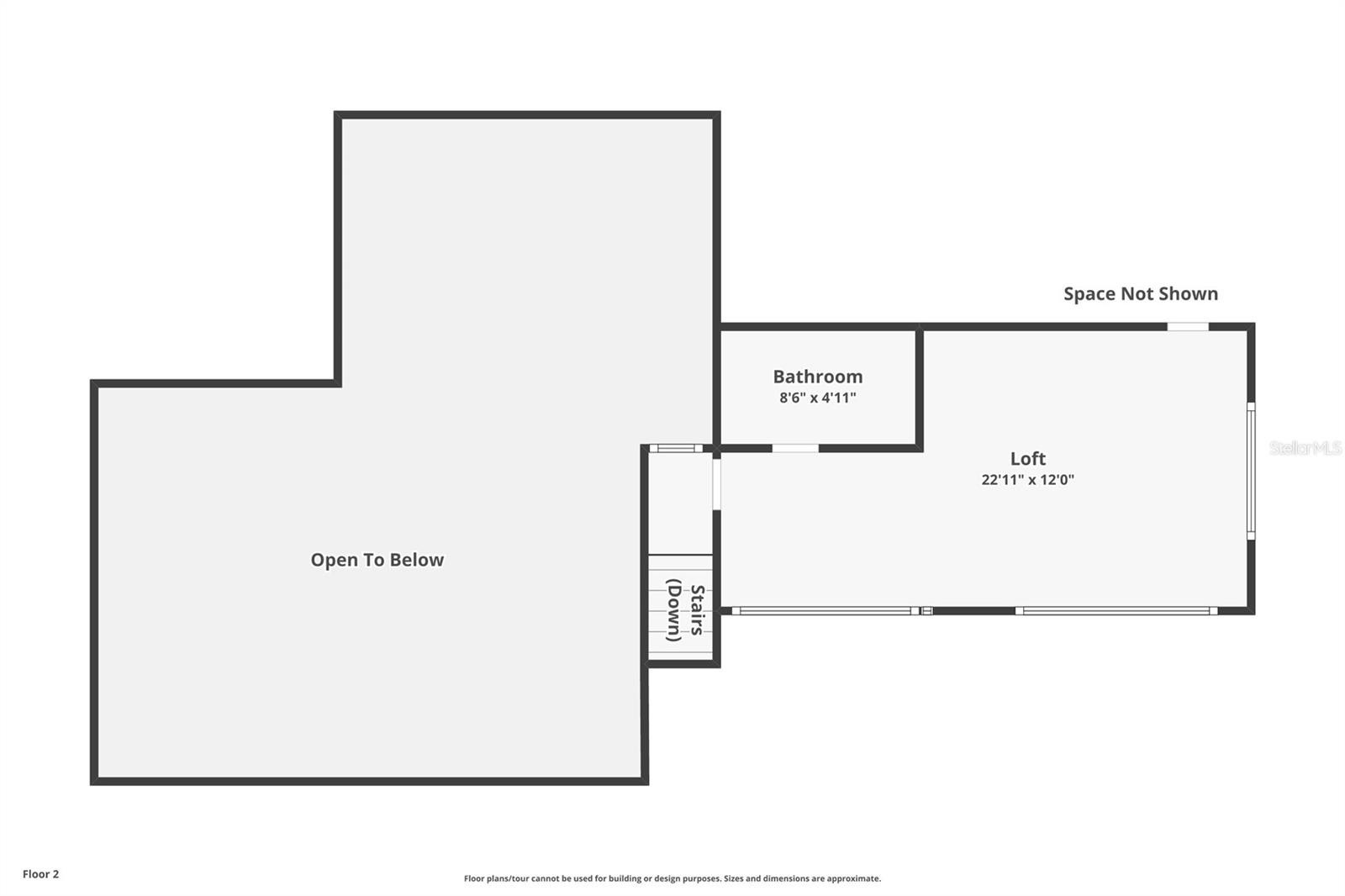
Set in the quiet and charming Beneva Woods community, this lovingly remodeled 4-bedroom, 3-bath home offers privacy, architectural character, and a peaceful connection to nature, just 15 minutes from downtown Sarasota. The home is surrounded by mature trees and opens to a serene backyard with a screened pool and tranquil lake views beyond. Enjoy a quiet morning coffee or a relaxed evening swim; the outdoor space feels like a private retreat. Inside, the home blends clean modern lines with warm natural textures and an eclectic, artistic sensibility. Vaulted ceilings, exposed beams, and thoughtful architectural details create a light-filled, airy feel throughout the main living spaces. The kitchen is generous and well designed, with ample cabinetry and modern finishes, overlooking the living area, perfect for everyday living and relaxed entertaining. The primary suite is calm and inviting, with a beautifully updated spa-style bathroom featuring dual vanities and sculptural vessel sinks. Plantation shutters open to overlook the pool and greenery beyond, allowing the suite to feel quietly connected to the serene outdoor setting. On the main level, a flexible floor plan includes additional bedrooms and a full bath that also serves conveniently as a pool bath. A striking open staircase leads to a spacious loft on the second level with its own en-suite bath, offering an ideal space for guests, a home office, or a private retreat. Additional features include two A/C units, two hot water heaters, a wood-burning fireplace, a large laundry room with direct access to a private dog run, and a two-car garage that includes a small air-conditioned space ideal for a workshop, hobby area, or additional storage. This is a home that feels intentional, peaceful, and deeply cared for - a rare opportunity to enjoy privacy, architectural interest, and serenity while remaining close to Sarasota’s beaches, dining, and vibrant cultural life.

 



5482 BENEVA WOODS CIRCLE

Inquire about this home

Berkshire Hathaway HomeServices
Florida Realty

3192 Fruitville Rd, Sarasota, FL 34237


Explore: Beneva Woods


Similar Listings

More Single Family Residence for sale near Beneva Woods in SARASOTA Florida


$969K 5240 WILLOW LAKE CT SARASOTA FL 34233

$875K 3651 COUNTRY PLACE BLVD SARASOTA FL 34233

$869K 5311 NATHANIEL PL SARASOTA FL 34233

Listing Broker: PREFERRED SHORE LLC
Last Changed: Sunday 11th of January 2026 11:49:19 AM

All listing information is deemed reliable but not guaranteed and should be independently verified through personal inspection by appropriate professionals. Listings displayed on this website may be subject to prior sale or removal from sale; vailability of any listing should always be independently verified. Listing information is provided for consumer personal, non-commercial use, solely to identify potential properties for potential purchase; all other use is strictly prohibited and may violate relevant federal and state law. Copyright 2021 , Stellar MLS.