$295,000
  • 3 beds
  • 2 baths
  • 1620 sqft
  • 0 acres
  • 1999 year built

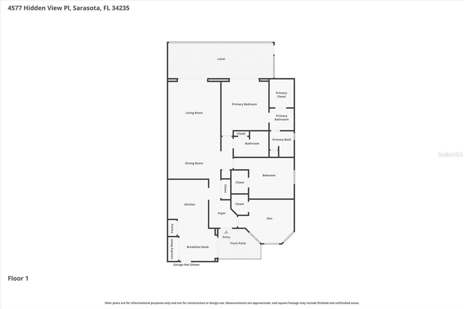
Under contract-accepting backup offers. Vaulted ceilings, abundant natural light, and a spacious screened lanai define this inviting 3-bedroom, 2-bath home in the established Beekman Lakes community. A private front courtyard creates a welcoming entrance and an outdoor space that naturally becomes part of daily life—perfect for morning coffee, container gardens, or a quiet place to relax in the fresh air. From the foyer, the kitchen sits just off to the left with generous cabinet storage and a wide pass-through that keeps the space open to the dining and living areas, making it easy to stay part of the conversation. The counter on the opposite side offers space for bar seating, creating a natural gathering spot for casual meals or chatting while dinner comes together. At the front of the kitchen, the breakfast nook sits beside sliding glass doors that open directly to the courtyard, creating a bright and cheerful place to start the morning. Beyond the kitchen, the dining area and living room open beneath vaulted ceilings where clerestory windows draw in natural light, forming a welcoming space where everyday meals, relaxed evenings, and time spent together naturally unfold. Sliding glass doors along the back of the living room lead to the screened lanai stretching across the rear of the home, offering generous space for outdoor seating, dining, or simply enjoying the peaceful backyard setting. The primary suite is privately positioned at the back of the home with its own access to the lanai through sliding doors, along with an en-suite bathroom featuring dual sinks and a walk-in shower. Two additional bedrooms and a full bathroom offer comfortable, flexible space that easily adapts to guests, hobbies, or everyday living. Residents of Beekman Lakes enjoy ease of living with grounds maintenance and cable included, access to a sparkling community pool, and a location just minutes from University Town Center, downtown Sarasota, excellent dining and shopping, and the Gulf Coast’s renowned beaches.

 



4577 HIDDEN VIEW PLACE

Inquire about this home

Berkshire Hathaway HomeServices
Florida Realty

3192 Fruitville Rd, Sarasota, FL 34237


Explore: Hunters Walk - Hamlets


Similar Listings

More Condominium for sale near Hunters Walk - Hamlets in SARASOTA Florida


$375K 3020 RINGWOOD MDW #11 SARASOTA FL 34235

$375K 3413 YONGE AVE #63 SARASOTA FL 34235

$365K 4352 EDINBRIDGE CIR #5 SARASOTA FL 34235

Listing Broker: TNG REAL ESTATE
Last Changed: Wednesday 08th of April 2026 06:00:12 PM

All listing information is deemed reliable but not guaranteed and should be independently verified through personal inspection by appropriate professionals. Listings displayed on this website may be subject to prior sale or removal from sale; vailability of any listing should always be independently verified. Listing information is provided for consumer personal, non-commercial use, solely to identify potential properties for potential purchase; all other use is strictly prohibited and may violate relevant federal and state law. Copyright 2021 , Stellar MLS.