$435,000
  • 4 beds
  • 2 baths
  • 2261 sqft
  • 0.19 acres
  • 1987 year built

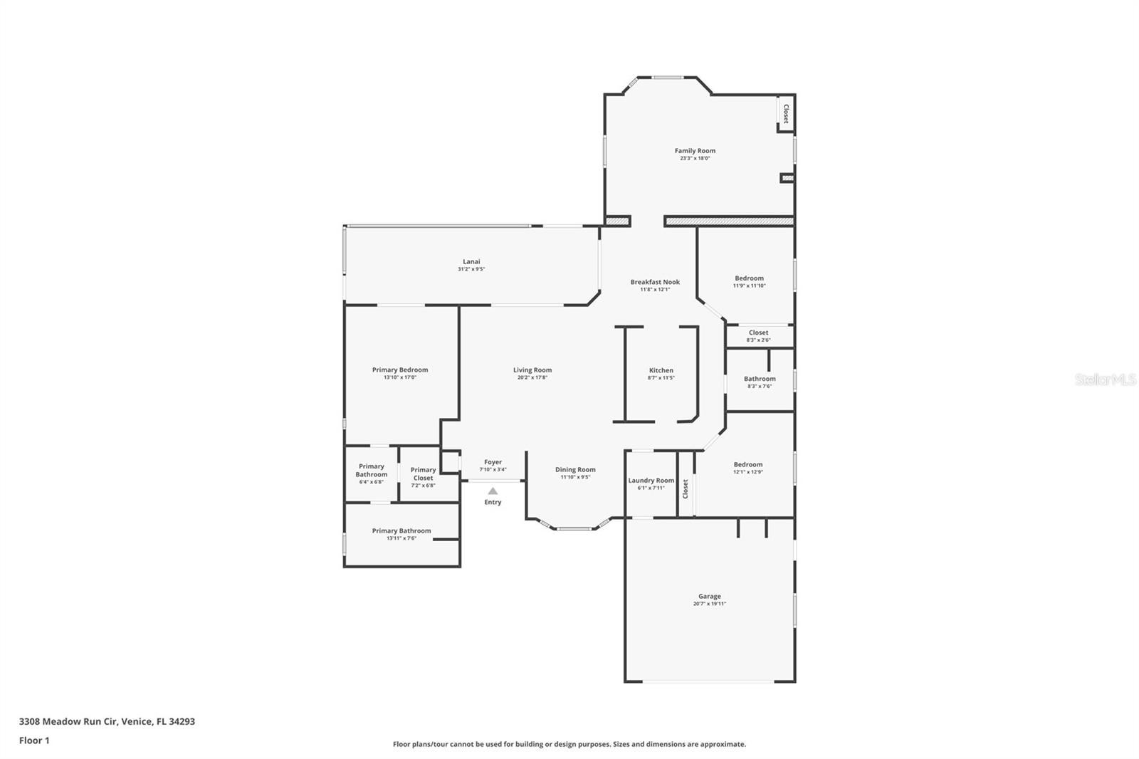
Located in desirable Meadow Run at Jacaranda, this 3-bedroom + *BONUS ROOM*, 2-bath residence offers a split bedroom layout, NEWER ROOF (2022), NEWER AC (2023) and a community clubhouse with gathering room, pool, tennis & pickleball. As you enter the home, you are greeted by the soaring ceilings and tons of natural light flowing into the home. The sprawling great room is straight ahead and formal dining room is to the right. The kitchen opens up to the great room and has plenty of cabinet and counter space for the chef of the house. Just beyond the breakfast area is a HUGE 23 x 18 family room/bonus room with pocket doors & two closets. If desired, this bonus room could also function as a 4th bedroom. The screened lanai with a **WATER VIEW** provides the perfect setting to enjoy your morning coffee or an evening cocktail. The primary suite is located near the foyer— featuring a walk-in closet, soaking tub, separate shower, dual vanities, and views of the lake! The 2nd & 3rd bedrooms and guest bathroom are located on the opposite side of the home. The roof was installed in 2022, AC was installed in 2023, BRAND NEW EXTERIOR PAINT (2026), and BRAND NEW FANS & LIGHT FIXTURES (2026). The entire home has been re-plumbed & there are hurricane shutters for all windows. The vinyl floors were installed within the last few years & interior painting was done within the last few years. This home is located in an X flood zone so mortgage lenders will not require flood insurance. Since this home has a newer roof & block construction, the insurance is very reasonable. The Meadow Run neighborhood is a quaint section of charming Jacaranda— located in the heart of Venice, FL. The $250 per quarter pays for the community clubhouse with pool, gathering room, tennis courts, and pickleball. There is NO CDD fee here! Just minutes to Venice Island which is known for its warm Gulf beaches, dog park, dog beach, shopping, dining, splash pad, parks, Sharky’s fishing pier & waterfront restaurants, tennis courts, weekly farmer’s market, tons of events, and so much more! Schedule your showing today and start living the Florida lifestyle! (See floorpan in photos)

 



3308 MEADOW RUN CIRCLE

Inquire about this home

Berkshire Hathaway HomeServices
Florida Realty

3192 Fruitville Rd, Sarasota, FL 34237


Explore: Meadow Run At Jacaranda


Similar Listings

More Single Family Residence for sale near Meadow Run At Jacaranda in VENICE Florida


$565K 1848 LANCASHIRE DR VENICE FL 34293

$565K 11911 BOHEMIAN PL VENICE FL 34293

$565K 4115 HEMINGWAY DR VENICE FL 34293

Listing Broker: KELLER WILLIAMS ON THE WATER S
Last Changed: Tuesday 03rd of February 2026 01:46:09 PM

All listing information is deemed reliable but not guaranteed and should be independently verified through personal inspection by appropriate professionals. Listings displayed on this website may be subject to prior sale or removal from sale; vailability of any listing should always be independently verified. Listing information is provided for consumer personal, non-commercial use, solely to identify potential properties for potential purchase; all other use is strictly prohibited and may violate relevant federal and state law. Copyright 2021 , Stellar MLS.