$999,999
  • 3 beds
  • 3 baths
  • 3023 sqft
  • 0.31 acres
  • 1998 year built

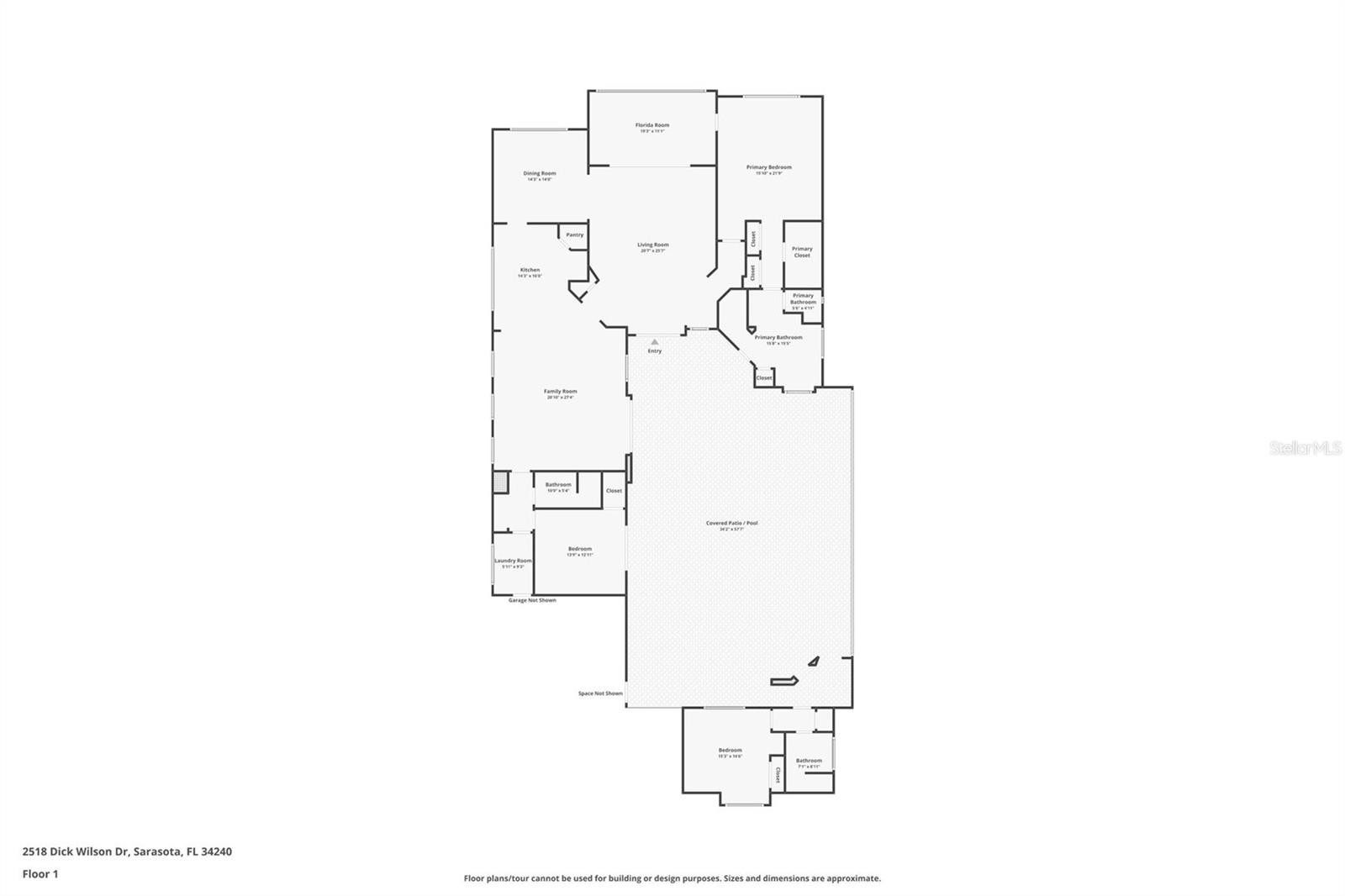
This elegant residence, located in one of Sarasota’s most desirable communities, offers a refined blend of style, comfort, and seclusion. With its thoughtful layout, open-concept interiors, and seamless indoor-outdoor flow, this property effortlessly combines luxury, function, and privacy — all within a captivating courtyard setting. The moment you enter, you’re greeted by the serene centerpiece of the home — a courtyard with a sparkling heated pool and spa, outdoor kitchen with vented gas grill, and covered al fresco dining space. The main house showcases soaring 12–14 ft ceilings with crown molding, custom built-ins, and granite finishes throughout, while French doors and tall transom windows fill the interiors with natural light. The home is perfect for those who love to entertain with its split floorplan and large common spaces. The kitchen features a pantry, breakfast bar, and Skylight family control center, and is connected seamlessly to both the family room and the formal dining room that features a beautiful built-in buffet and display to showcase your favorite things. A sunroom in the back functions as a perfect playroom for little ones, or as an inspiring office or library. The mother-in-law/multi-gen suite is thoughtfully designed with a custom Murphy bed and library shelves, and is ideal as guest quarters, a home office, man cave, or fitness retreat—offering the independence and comfort of a true guest house within the property’s secluded courtyard embrace. The property offers peace of mind, inside and out, as it has a brand new AC and water heaters, was recently re-plumbed, and has a 2017 barrel tile roof. It has been beautifully maintained, with a recently updated pool heater and pump. The oversized two-car garage with golf cart space includes a large air-conditioned storage room, is EV charging ready with a 40amp wall outlet, and there is additional parking space for all the guests who will be clamoring to come visit! Enjoy care-free living as this enclave of Laurel Oak includes lawn maintenance in your HOA fees. Laurel Oak Estates offers a lifestyle of distinction, featuring a 24 hour guarded gate and stunning manicured grounds. Membership to the club is optional, and has its privileges: 36 holes of championship golf, 12 tennis courts, 6 pickleball courts, a clubhouse that offers dining and social events, and an inviting heated and cooled junior Olympic pool. Live the Florida lifestyle you’ve been dreaming of, in the home and neighborhood that will make you feel like you’ve arrived!

 



2518 DICK WILSON DRIVE

Inquire about this home

Berkshire Hathaway HomeServices
Florida Realty

3192 Fruitville Rd, Sarasota, FL 34237


Explore: Laurel Oak Estates Sec 11


Similar Listings

More Single Family Residence for sale near Laurel Oak Estates Sec 11 in SARASOTA Florida


$1.3M 3782 EAGLE HAMMOCK DR SARASOTA FL 34240

$1.2M 2612 WATERFRONT CIR SARASOTA FL 34240

$1.2M 4674 HIDDEN RIVER RD SARASOTA FL 34240

Listing Broker: COLDWELL BANKER REALTY
Last Changed: Wednesday 26th of November 2025 10:32:09 PM

All listing information is deemed reliable but not guaranteed and should be independently verified through personal inspection by appropriate professionals. Listings displayed on this website may be subject to prior sale or removal from sale; vailability of any listing should always be independently verified. Listing information is provided for consumer personal, non-commercial use, solely to identify potential properties for potential purchase; all other use is strictly prohibited and may violate relevant federal and state law. Copyright 2021 , Stellar MLS.