$343,000
  • 3 beds
  • 2 baths
  • 1688 sqft
  • 0.05 acres
  • 2017 year built

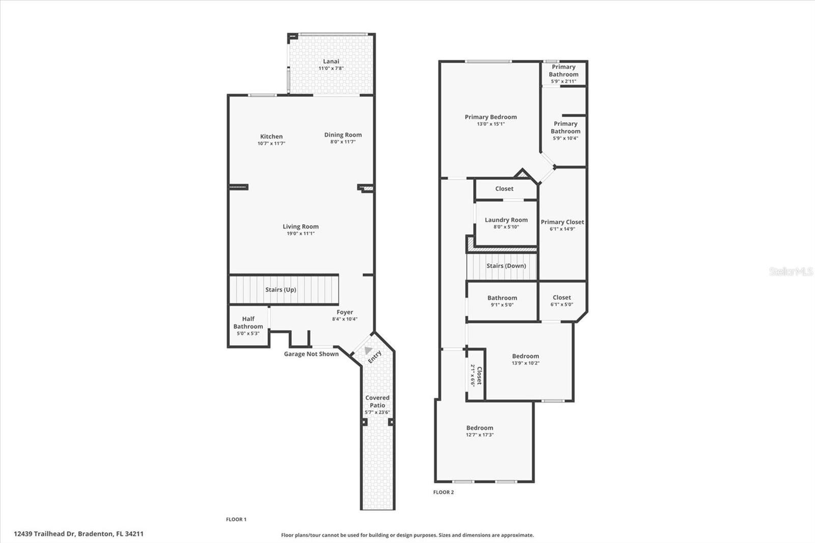
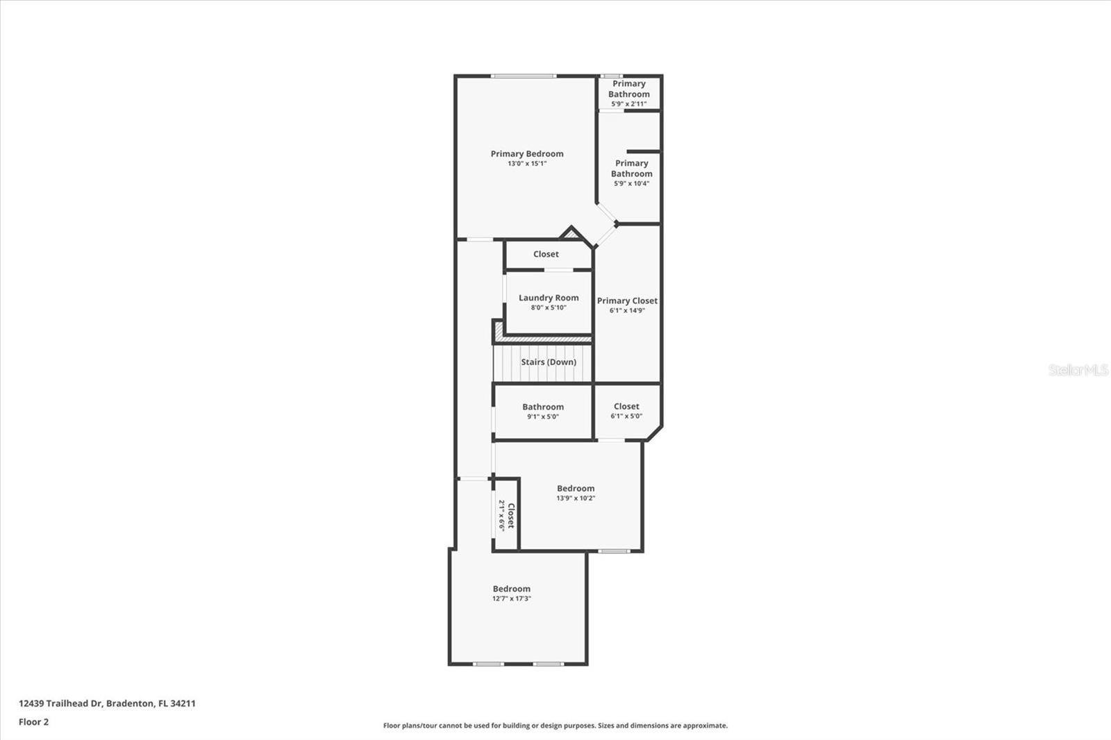
Move-in ready Low maintenance stunner is ready for its new family. Light, Bright & like new without the wait or hassles of construction. Pack your bags and get ready to enjoy the good life in your new home. The split floor plan offers plenty of privacy for you and your guests. Private back yard views greet you from the moment you enter this tastefully updated oasis. From the freshly painted interior to the new luxury vinyl flooring, you'll appreciate all of the attention given to updating and maintaining the home. High ceilings and an open floor plan allow you to entertain seamlessly. Kitchen features include solid wood cabinetry, black stainless-steel appliances (all but microwave are 3 years young), a large island w/ breakfast bar, new pendant lighting, granite counters, backsplash & disposal. The split staircase gives a truly private feel to your owner's area shared only with your large laundry room complete with washer and dryer that are only 6 months old. The large Owners Bedroom offers private views, a large 6x14 walk-in closet with custom built-ins and an owner’s bathroom complete with updated tile shower, Oversized dual sink vanity with great storage, new lights, mirrors, faucets and fixtures, and a private water closet. The carpet in the home is like-new and less than a year old. The home features updated fans, lights and fixtures throughout. Both secondary bedrooms are generously sized. Bedroom 2 has a walk-in closet and bedroom 3 has a built-in closet with closet system to maximize your storage. Speaking of storage... this home is not lacking…. from the giant under stair storage, to the large closet in the laundry room & the added overhead storage in your 2 Car garage, there is plenty of space for your personal things. Both Secondary bathrooms have updated lights, mirrors, faucets and fixtures. Enjoy quiet mornings or peaceful sunset painted skies from your brick paver, screened in back lanai. Grab a book or your favorite drink and unwind without interruption. If you’ve been looking for a great home with all the big things taken care of, this one will check all the boxes. Looking for a maintenance free community with Low Dues in Lakewood Ranch? The amenity rich community of Harmony will not disappoint! From the fitness center, playground, park & walking paths to the Large, heated walk-in pool complete with large paver patio. This community has something for everyone. If you have a 4-legged friend in need of a new home this pet friendly community is the perfect fit. Top Rated schools including LECOM are just minutes away. Great location for those who need to commute. Close to some of the best shopping, dining and entertainment around. Just a few miles to some of the top beaches in the US. Schedule a tour, fall in love, Welcome Home!!

 



12439 TRAILHEAD DRIVE

Inquire about this home

Berkshire Hathaway HomeServices
Florida Realty

3192 Fruitville Rd, Sarasota, FL 34237


Explore: Harmony At Lakewood Ranch Ph I


Similar Listings

More Townhouse for sale near Harmony At Lakewood Ranch Ph I in BRADENTON Florida


$410K 11613 WOODLEAF DR LAKEWOOD RANCH FL 34211

$409K 11811 MEADOWGATE PL BRADENTON FL 34211

$406K 15191 LYLA TER LAKEWOOD RANCH FL 34211

Listing Broker: COLDWELL BANKER REALTY
Last Changed: Saturday 31st of January 2026 01:54:09 PM

All listing information is deemed reliable but not guaranteed and should be independently verified through personal inspection by appropriate professionals. Listings displayed on this website may be subject to prior sale or removal from sale; vailability of any listing should always be independently verified. Listing information is provided for consumer personal, non-commercial use, solely to identify potential properties for potential purchase; all other use is strictly prohibited and may violate relevant federal and state law. Copyright 2021 , Stellar MLS.