$5,950,000
  • 4 beds
  • 5 baths
  • 3469 sqft
  • 0.25 acres
  • 2005 year built

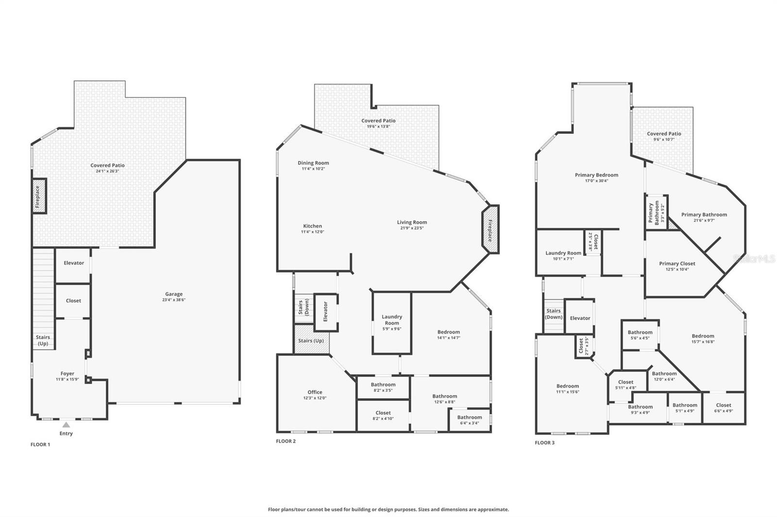
Unobstructed Gulf views define this true Gulf-front home on one of the most desirable stretches of Anna Maria Island. With nothing between the property and the shoreline, the balcony captures nearly three-quarters of a mile of uninterrupted beach frontage—an exceptionally rare vantage point created by the natural contour of the island to the north. Very few homes on AMI offer a view corridor this wide or this direct. Built in 2005 by Whitehead Construction, a respected builder in Manatee County, the home is well constructed and offers a layout well-suited for an immediate move-in or a next chapter renovation. The 4-bedroom, 5.5-bath design includes two Gulf-facing decks: one off the main living area and a private third-floor terrace exclusive to the primary suite. The location is one of the island’s best. Positioned at Coconut and Gulf, the home benefits from quieter traffic patterns while still offering walkable access to Pine Avenue’s coffee shops, restaurants, and boutiques. Sunset views are a nightly event, and beach access is just steps from the door. Additional features include a private pool, space for a covered outdoor kitchen, and a two-car garage with room for a golf cart and beach gear. At the time of construction, finishes were in the top tier for the island, and the home is now ready for a thoughtful update to match its premier location. Opportunities like 12106 Gulf are limited on Anna Maria Island. True Gulf-front ownership, a wide and unobstructed view corridor, and a location that delivers both privacy and walkability make this property stand out. Savvy buyers seeking the best views on the island will recognize the significance of this address.

 



12106 GULF DRIVE

Inquire about this home

Berkshire Hathaway HomeServices
Florida Realty

3192 Fruitville Rd, Sarasota, FL 34237


Explore: Anna Maria Beach First Add


Similar Listings

More Single Family Residence for sale near Anna Maria Beach First Add in ANNA MARIA Florida


$7.5M 107 MAPLE AVE ANNA MARIA FL 34216

$7.5M 513 VILLA ROSA WAY ANNA MARIA FL 34216

$7.2M 319 TARPON ST ANNA MARIA FL 34216

Listing Broker: REEL COASTAL PROPERTIES, LLC
Last Changed: Friday 01st of May 2026 02:07:15 PM

All listing information is deemed reliable but not guaranteed and should be independently verified through personal inspection by appropriate professionals. Listings displayed on this website may be subject to prior sale or removal from sale; vailability of any listing should always be independently verified. Listing information is provided for consumer personal, non-commercial use, solely to identify potential properties for potential purchase; all other use is strictly prohibited and may violate relevant federal and state law. Copyright 2021 , Stellar MLS.