$475,000
  • 4 beds
  • 3 baths
  • 2025 sqft
  • 0.15 acres
  • 2013 year built

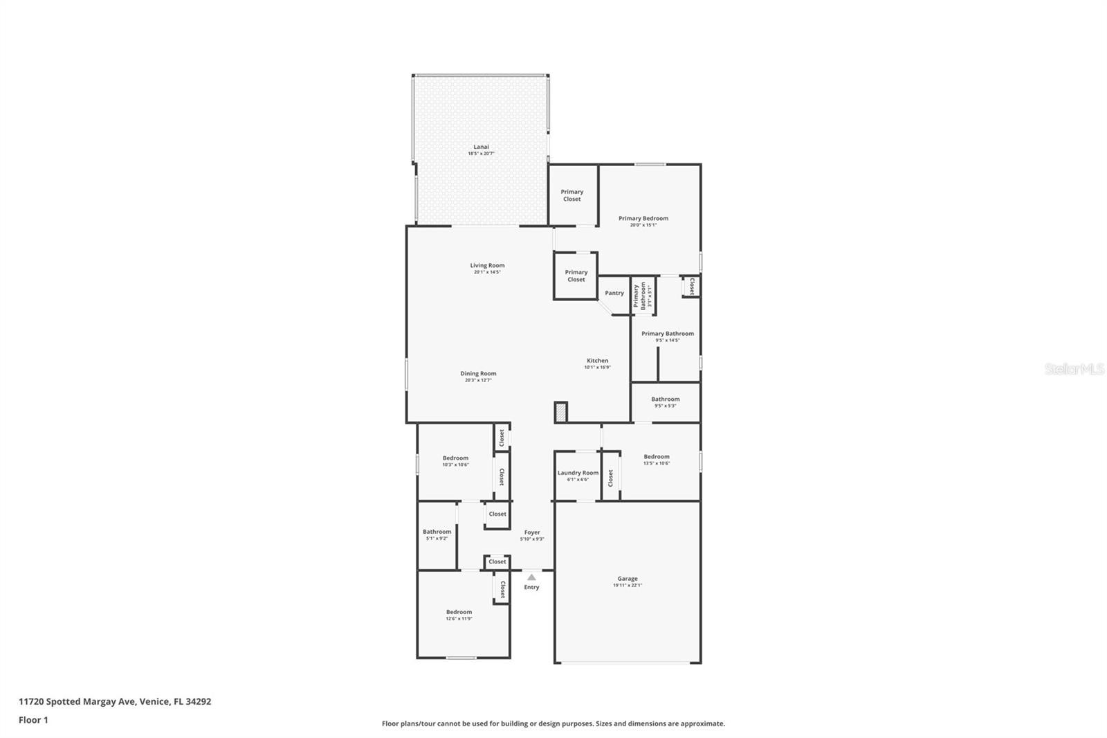
Welcome to this stunning 4-bedroom, 3-bathroom home with a 2-car garage, perfectly positioned on a serene lake in the desirable gated community of Stoneybrook at Venice. Offering over 2,000 square feet under air, this home combines spacious living with elegant finishes and resort-style amenities. Step inside to find 10-foot ceilings with crown molding that create an open, airy feel throughout the main living areas. The diamond pattern tile flooring in the main spaces provides a clean, modern look, while carpeted bedrooms offer comfort and warmth. The kitchen is a true centerpiece, featuring granite countertops, a stylish tile backsplash, pendant lighting over the island, and a large pantry—perfect for both entertaining and everyday living. Enjoy beautiful lake views from the living room through the 8-foot sliding glass doors that opens to a screened-in lanai, ideal for relaxing mornings or peaceful evenings outdoors. An added electrical outlet on the lanai for an outdoor kitchen while another outlet at the BBQ Grill area for the rotisserie. An additional outlet at the front of the home is perfect for holiday decorating. Low voltage wiring has been installed for accent lighting in the front yard. A screened in front entry allows you to open your front door without flying insects entering. The spacious primary suite offers a private retreat with a luxurious ensuite bathroom featuring a garden tub, walk-in shower, and dual vanities. Additional upgrades include attic stairs and plywood flooring for easy attic storage, and a generator wired directly into the electrical panel—simply flip a switch to power your home during an outage. Residents of Stoneybrook enjoy a vibrant, active lifestyle with access to a state-of-the-art fitness center, resort-style pool, tennis and pickleball courts, basketball, volleyball, and playgrounds—plus a full calendar of community events and social gatherings. Located just minutes from Downtown Venice, Downtown Wellen Park, and the Gulf beaches, this home offers the perfect blend of comfort, convenience, and Florida lifestyle.

 



11720 SPOTTED MARGAY AVENUE

Inquire about this home

Berkshire Hathaway HomeServices
Florida Realty

3192 Fruitville Rd, Sarasota, FL 34237


Explore: Stoneybrook At Venice


Similar Listings

More Single Family Residence for sale near Stoneybrook At Venice in VENICE Florida


$600K 19792 COBBLESTONE CIR VENICE FL 34292

$599K 1770 KILRUSS DR VENICE FL 34292

$595K 1979 MESIC HAMMOCK WAY VENICE FL 34292

Listing Broker: CENTURY 21 SUNBELT REALTY
Last Changed: Wednesday 29th of October 2025 10:53:18 AM

All listing information is deemed reliable but not guaranteed and should be independently verified through personal inspection by appropriate professionals. Listings displayed on this website may be subject to prior sale or removal from sale; vailability of any listing should always be independently verified. Listing information is provided for consumer personal, non-commercial use, solely to identify potential properties for potential purchase; all other use is strictly prohibited and may violate relevant federal and state law. Copyright 2021 , Stellar MLS.