$525,000
  • 3 beds
  • 2 baths
  • 1694 sqft
  • 0.29 acres
  • 2000 year built

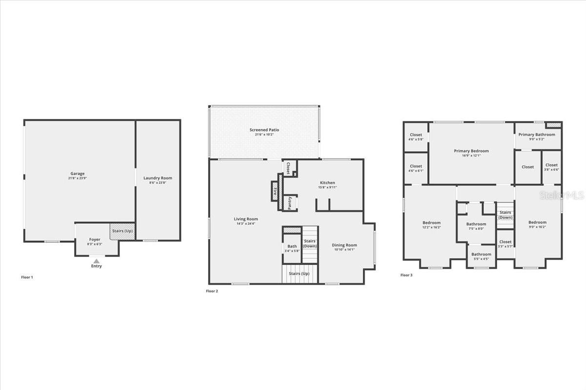
This unique elevated, waterview property backs up to a tranquil 1.6 acre waterfront private park with a boat ramp- (Partial ownership TRANSFERS to the buyer of this property).  Enjoy fishing, swimming, or taking your kayak or jet skis out on the water.  On the first floor you will find an oversized garage with storage space with an elevated laundry room, half bath and a lovely loft area.  You will find the main living area on the second floor with the kitchen, dining room, living room with fireplace, and a nicepowder room.  A generously sized screened porch and an open deck share the awesome waterview.  On the top floor you will find the primary bedroom, primary bath, the two guest bedrooms that share a hall bath.  This property has a fenced in yard perfect to keep your fur babies in and allowing easy access to your waterfront park.  Tons of parking for all of your toys and boats.  The Riverwalk extension is walking distance from this home and adds to your active Florida lifestyle.  Walk or bike ride to your favorite restaurants along the Bradenton Riverwalk. Perfect for kayakers, SUP, and jet skis too. No deed restrictions here! East of Historic River District & popular Downtown Riverwalk. Short bicycle or car ride to the farmers market, restaurants, park, library, public art, shopping, The South Florida Museum, Manatee Historical Village Park, Art Center Manatee, Local Award Winning Breweries, Manatee Performing Arts Center, or Lecom Baseball Park. Short distance away from the best GULF beaches, Sarasota Airport and attractions, St Pete 25-minutes away, Tampa Airport 45 minutes, Great centrally located home! Buyer to verify measurements.

 



103 17TH STREET E

Inquire about this home

Berkshire Hathaway HomeServices
Florida Realty

3192 Fruitville Rd, Sarasota, FL 34237


Explore: Riverside Heights


Similar Listings

More Single Family Residence for sale near Riverside Heights in BRADENTON Florida


$675K 942 PRESERVATION ST BRADENTON FL 34208

$665K 191 AMERICAS CUP BLVD BRADENTON FL 34208

$649.9K 5033 LAKE OVERLOOK AVE BRADENTON FL 34208

Listing Broker: FOREVER FLORIDA REAL ESTATE
Last Changed: Wednesday 04th of February 2026 04:44:09 PM

All listing information is deemed reliable but not guaranteed and should be independently verified through personal inspection by appropriate professionals. Listings displayed on this website may be subject to prior sale or removal from sale; vailability of any listing should always be independently verified. Listing information is provided for consumer personal, non-commercial use, solely to identify potential properties for potential purchase; all other use is strictly prohibited and may violate relevant federal and state law. Copyright 2021 , Stellar MLS.