$740,000
  • 3 beds
  • 3 baths
  • 2433 sqft
  • 0.18 acres
  • 2021 year built

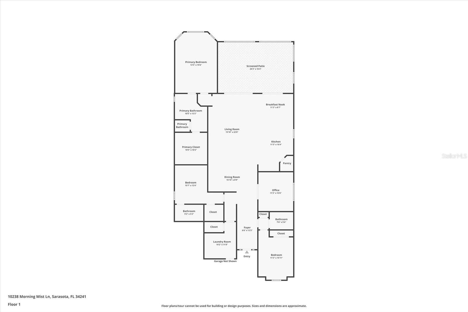
SOPHISTICATED & SPECTACULAR IN SKYE RANCH! Welcome to this nearly new, custom-designed residence in the prestigious Esplanade at Skye Ranch, an exclusive gated enclave offering resort-style living at its finest. This exquisite THREE BEDROOM PLUS BONUS ROOM, THREE BATHROOM home, with a THREE CAR TANDEM GARAGE, blends architectural elegance with modern comfort—an inspired retreat where every detail delights. From the moment you enter, soaring volume ceilings and an abundance of natural light create a sense of openness and serenity. Rich, wood-toned luxury vinyl plank flooring flows seamlessly through the main living spaces, complementing the home’s warm, inviting palette. The open-concept great room harmoniously unites the living, dining, and kitchen areas—each distinct yet perfectly connected—making it an ideal setting for both intimate evenings and grand gatherings. The freshly painted interiors radiate sophistication, while the gourmet kitchen impresses with its upgraded Shaker-style soft-close cabinetry, premium GE stainless steel appliances, a gas cooktop, and an expansive elegant quartz island. A generous walk-in pantry and water filtration system enhance both function and lifestyle. Step outside to the expansive lanai, designed for year-round enjoyment. The BRAND NEW OUTDOOR KITCHEN, retractable motorized screens, and sweeping eastern-facing water views of the tranquil pond create an idyllic setting for entertaining or quiet reflection. Bask in breathtaking sunrises that will become your favorite morning ritual. Each of the home’s three spacious bedrooms offers privacy and its own en-suite bath, thoughtfully appointed for comfort and style. The primary suite is a serene sanctuary, featuring a beautiful bay window perfect for a cozy sitting nook, tray ceilings, and captivating water views. The luxurious bath showcases dual vanities, large format tile flooring, an oversized frameless glass walk-in shower with floor-to-ceiling tile, and an expansive custom closet designed to accommodate even the most extensive wardrobe. The bonus room offers endless possibilities—ideal as a fourth bedroom, a sophisticated home office, or a private media retreat. This sought-after Lazio floor plan embodies timeless elegance and contemporary livability. And, you can move right in to this beautiful home, as the lightly lived in furnishings are available under separate bill of sale. Just steps away lies Rendezvous Park, the residents-only oasis featuring a resort-style pool and spa, cabanas, fireside seating, a bark park, bocce and pickleball courts, and an event lawn. You’ll also enjoy access to The Hub, a 25,000-square-foot clubhouse with a catering kitchen, fitness center, indoor basketball courts, rock climbing wall, café, social lounges, Kidz Zone, and a family-friendly pool complex complete with lap lanes and splash pad. Set amid 387 acres of pristine preserve land and scenic lakes, Skye Ranch offers more than 25 miles of picturesque trails for walking, running, and cycling. A lifestyle manager curates a calendar of events, wellness programs, and community gatherings that make every day feel like a celebration. Perfectly positioned near A-rated Sarasota County schools, world-class Gulf Coast beaches, championship golf courses, the vibrant cultural scene of downtown Sarasota, University Town Center’s upscale shopping, and premier medical facilities—this is more than a home; it’s a lifestyle of refined relaxation and endless opportunity.

 



10238 MORNING MIST LANE

Inquire about this home

Berkshire Hathaway HomeServices
Florida Realty

3192 Fruitville Rd, Sarasota, FL 34237


Explore: Skye Ranch Nbrhd Four North


Similar Listings

More Single Family Residence for sale near Skye Ranch Nbrhd Four North in SARASOTA Florida


$955K 4889 BRIGITTA DR SARASOTA FL 34241

$950K 9011 MISTY CREEK DR SARASOTA FL 34241

$949K 8329 EAGLE LAKE DR SARASOTA FL 34241

Listing Broker: WHITE SANDS REALTY GROUP FL
Last Changed: Wednesday 03rd of December 2025 06:39:13 PM

All listing information is deemed reliable but not guaranteed and should be independently verified through personal inspection by appropriate professionals. Listings displayed on this website may be subject to prior sale or removal from sale; vailability of any listing should always be independently verified. Listing information is provided for consumer personal, non-commercial use, solely to identify potential properties for potential purchase; all other use is strictly prohibited and may violate relevant federal and state law. Copyright 2021 , Stellar MLS.